A well-presented former farmhouse, annexe, outbuildings, and land offering excellent hobby farming, lifestyle or business from home opportunity.
Homeston Farm
Homeston Farm is a collection of residential property, flexible outbuildings and land. The assets at Homeston Farm represent an excellent and established principal private residency and is also perfectly located as a second or holiday home, or as an income producing investment property. The main house, buildings and land lend themselves suitable for those with equine interests, small scale rare breed rearing or hobby farming. In addition, opportunities may exist, (with the appropriate permissions and consents) to re-establish an income producing livery enterprise.
Homeston Farm is a substantial farmhouse which sits within circa 10 acres of land which is laid to a combination of immediate garden grounds, a concrete courtyard and grazing fields. Homeston Farmhouse has been extended and well maintained over the years and is of white painted render with smooth render relief with contrasting black painted detailing at window mullions. The accommodation is light and bright and laid out over two easily managed levels and is under a slated roof.
Homeston Farm
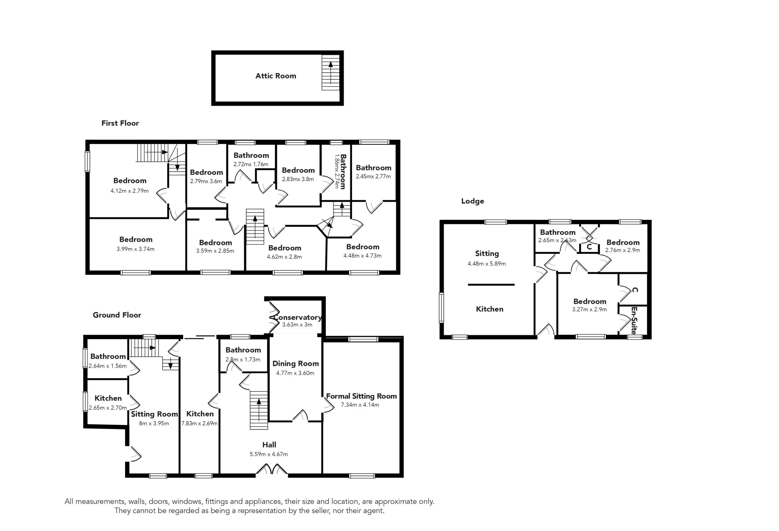
Ground Floor
Outer front door to entrance vestibule, twin leaf glass doors to welcoming entrance hallway, formal sitting room with electric fire, hardwood flooring, exposed Edinburgh press shelving, window to front gardens and landscape window to rear. Formal dining room with gas imitation stove, open plan to sunroom with windows and twin leaf doors to gardens. Under stair store cupboard, family shower room with walk in shower enclosure, integrated contemporary kitchen with Stanley Range which operates the heating, open plan to breakfasting dining area, doors to gardens.
First Floor
Via carpeted staircase to first floor landing, bedroom 1 with window to front gardens, wash hand basin, en suite shower room. Bedroom 2 with wash hand basin, window overlooking rear gardens, family bathroom with window to rear, linen cupboard, bedroom 3 with window to rear, imitation stove, en suite shower room with window to rear, bedroom 4 with window to front, bedroom 5 (principal) with window to front gardens, en suite shower room with window to rear gardens.
Attic Room
Via carpeted staircase to attic room, velux windows.
……………………………………………………...
Annexe
Attached to Homeston Farmhouse is an annexe which requires a degree of modernisation throughout. The accommodation is laid across two easily managed light and bright levels and comprises, sitting cum dining room with warming log burning stove, kitchen, shower room.
First Floor
Via staircase to first floor, (adjoining door
to main house at half landing), bedroom 1
& 2.
……………………………………………………..
Gardens
The immediate gardens at Homeston Farm are laid to gravel at the front which offers ample vehicular hard standing, turning and parking, a cobbled area also lies at the front which Is ideal for alfresco sitting and dining. The rear gardens are to lawn with a drying green and are low maintenance by design and bounded by timber post and rail fencing.
Services
Mains water supply, drainage is by private septic tank, oil fired central heating, double glazed.
Note: The services have not been checked by the selling agents.
Outbuildings
• Steel portal frame, block wall and
corrugated sheet roof general purpose
building (currently storing vintage
vehicles) sliding door, concrete floor.
• 3 bay steel portal frame open fronted shed, part stone and part box profile steel walls and roof, concrete floor.
• 5 bay steel portal frame open fronted shed with corrugated sheet roof, stone and slatted timber walls, 7 galvanised steel loose boxes, concrete floor, light power and water supply, steel swing gate with field access.
• Attached lean-to general-purpose store with 4 historic loose horse boxes, cobbled floor, tack room.
Land
The land at Homeston Farm lies largely due East of the property with the entire land holding (including the access road, gardens and miscellaneous) extending to a total of circa 10 acres. Homeston Farm is a registered farm with a farm code (68/152/0056), and the land is predominantly to permanent pasture and grazing land all of which is bounded by a combination of post and wire fencing and stone dykes.
Highlighted in red within our land plan.
……………………………………………………...
*IMPORTANT NOTE*
A separate lot (The Lodge and Land) can be made available strictly by separate negotiation.
The Lodge and Land
Due southeast of Homeston Farm there is an area of land directly across the farm track which is predominantly to permanent pasture and grazing land with a round horse pen and field shelter on a concrete pad all of which is bounded by post and wire fencing. A very pretty burn known as ‘Homeston Burn’ wends its way through Achnabraad Glen past Homeston Farm and down through the land.
Located beside Homeston Burn there is a detached Lodge which has been used by the current owners as an income producing holiday letting home.
The lodge is completed in a composite timber effect cladding under a tiled roof and comprises 2 bedrooms, open plan sitting, dining and kitchen, family bathroom with overhead shower. A timber decking is located to the front of the lodge and offers an excellent space for alfresco sitting, dining and entertaining guests.
Lapsed Planning Permission
It is understood that there is lapsed planning permission for the erection of a dwelling house, installation of septic tank and formation of vehicular access within the land.
Planning reference number: 19/00824/PP.
The lodge and land comes with about 10 acres in all, highlighted in blue within our land plan.
Services
The lodge is serviced by LPG heating, mains water supply and drainage is by private septic tank.
Local Authorities
Argyll & Bute Council
Tel: 01546 602127
Council Tax
Homeston Farm is in council tax band E and the amount payable for 2025/26 is £2,475.59 including mains water and excluding sewage.
EPC
Rating F
Situation
Homeston Farm is situated in a location of great natural scenic beauty about 7.9 miles from the hamlet of Southend and the sandy beaches that form the southernmost tip of the Mull of Kintyre.
Campbeltown (6.1 miles) is the main shopping town in the area and provides a range of facilities including supermarkets, garages, the award winning ‘Aqualibrium’ leisure centre, a library, hospital and a cinema. The hospital has an air-ambulance service to the Queen Elizabeth hospital in Glasgow for emergencies.
There are primary schools at Campbeltown Castlehill, Dalintober and a Rural school on Drumlemble Road, all about equal distances apart and secondary education at Campbeltown Grammar.
Campbeltown is popular with tourists and also has a variety of hotels and restaurants. The town holds an annual regatta, a week-long music festival and the Mull of Kintyre half marathon. In addition, there are local whisky and gin Festivals.
Southend is on the southernmost tip of the ‘Mull’ of Kintyre and its beautiful white sand beaches are washed by the Gulf Stream which provides the peninsular with a temperate climate. The steep rocky cliffs and moorland of the Mull of Kintyre are inhabited by all kinds of wildlife.
Southend has a church, doctor’s surgery, hotel, post office, and tearoom.
The coastal village of Tarbert is 47 miles away where there are a number of friendly harbour pubs and restaurants. Tarbert is renowned for hosting the annual Scottish Series Yachting Event, and for its seafood and folk festivals.
Tarbert also has a ferry link to Portavadie which gives access to an alternative route to Glasgow. The nearby Campbeltown airport (9.8 miles) offers a twice daily return flight to Glasgow International Airport.
Machrihanish is famous for golf. The links course of Machrihanish is of international acclaim and attracts many visitors. There has also recently opened a new 18-hole golf course called the Machrihanish Dunes Golf Club.
Southend has a challenging 18-hole course (Dunaverty Golf Course) and there are nine-hole courses in Carradale and on the island of Gigha. The beach of Machrihanish Bay is well known for windsurfing and surf canoeing.
World class sailing is available with access to either Loch Fyne at Tarbert or the west coast and the Inner Hebrides from West Loch Tarbert. The Crinan Canal also connects Loch Fyne at Ardrishaig with Loch Crinan and on to the island of Mull and the Hebrides. The Kennacraig ferry connects the mainland with Islay, Jura and Colonsay. There is an active Sailing Club in Campbeltown as well as kayak, SUP and Diving Clubs all operating out of Campbeltown.
Productive sea fishing from shore and boat is available locally and there are trout and salmon opportunities by permit in other surrounding rivers and hill lochs.
The countryside is a delight in which to walk, cycle or horse ride, and there is no shortage of scenic routes and places of archaeological and historical interest to visit.
The islands of Davaar and Gigha are nearby and are steeped in history, with stunning scenery and landscapes and attract an abundance of wildlife.
A walkway called the Kintyre Way was completed in 2006 and stretches from Tarbert at the north end of the peninsula, to Southend in the south and criss-crosses the peninsula, connecting communities and landscape, people and produce. The Kintyre Way is 89 miles long in total and with four to seven day’s worth of walking. There is serious hiking and gentle rambles, all of which bring home the beautiful reality that is Kintyre.
Travel Directions
Whats3words - clef.chin.sobs
From Glasgow city centre travel in a westerly direction on the M8 motorway. Leave the motorway at J30 following signs for Erskine Bridge. Proceed over bridge turning left onto the A82. Remain on the A82 for 25 miles going up Loch Lomond side. Bear left at Tarbet on to the A83. Remain on the A83 for 61 miles passing through Inveraray, Furnace, Minard, Lochgilphead and Ardrishaig before arriving in Tarbert.
Continue through Tarbert on the A83 following signs for Campbeltown. Travel through Campbeltown and south on the B842 towards Southend for about 5.9 miles before turning right off the B842 following the sign for Dalsmeran, continue on the minor road for about 1 mile before reaching Homeston Farm.
Please complete the form below and a member of staff will be in touch shortly.