Tighnavinish is a beautifully finished, low-maintenance home designed by Dualchas Architects, situated on the Isle of Gigha. Due to annexe accommodation, the property offers considerable versatility and scope for an incoming buyer.
Tighnavinish is a beautifully finished and low maintenance by design home which offers considerable versatility and scope to a new inbound buyer. Internally, the accommodation is laid across two light and bright, easily managed levels which have historically been used for principal family living, multigenerational living and as a B&B income producing enterprise. When built, Tighnavinish was carefully considered to ensure that there was an excellent degree of flexibility for its use.
Externally, the property is striking and stylish, completed in white smooth render and contrasting larch cladding, all neatly presented under a dark grey slate roof. The materials used at Tighnavinish blend naturally with its surrounding landscape and the property sits nestled into the land and enjoys a sheltered location which in turn offers excellent privacy and seclusion.
The property is well set up for principal family living, and because of the wonderful Island setting Tighnavinish is also excellent as second or income producing investment home, the annexe in particular could generate income as a holiday let.
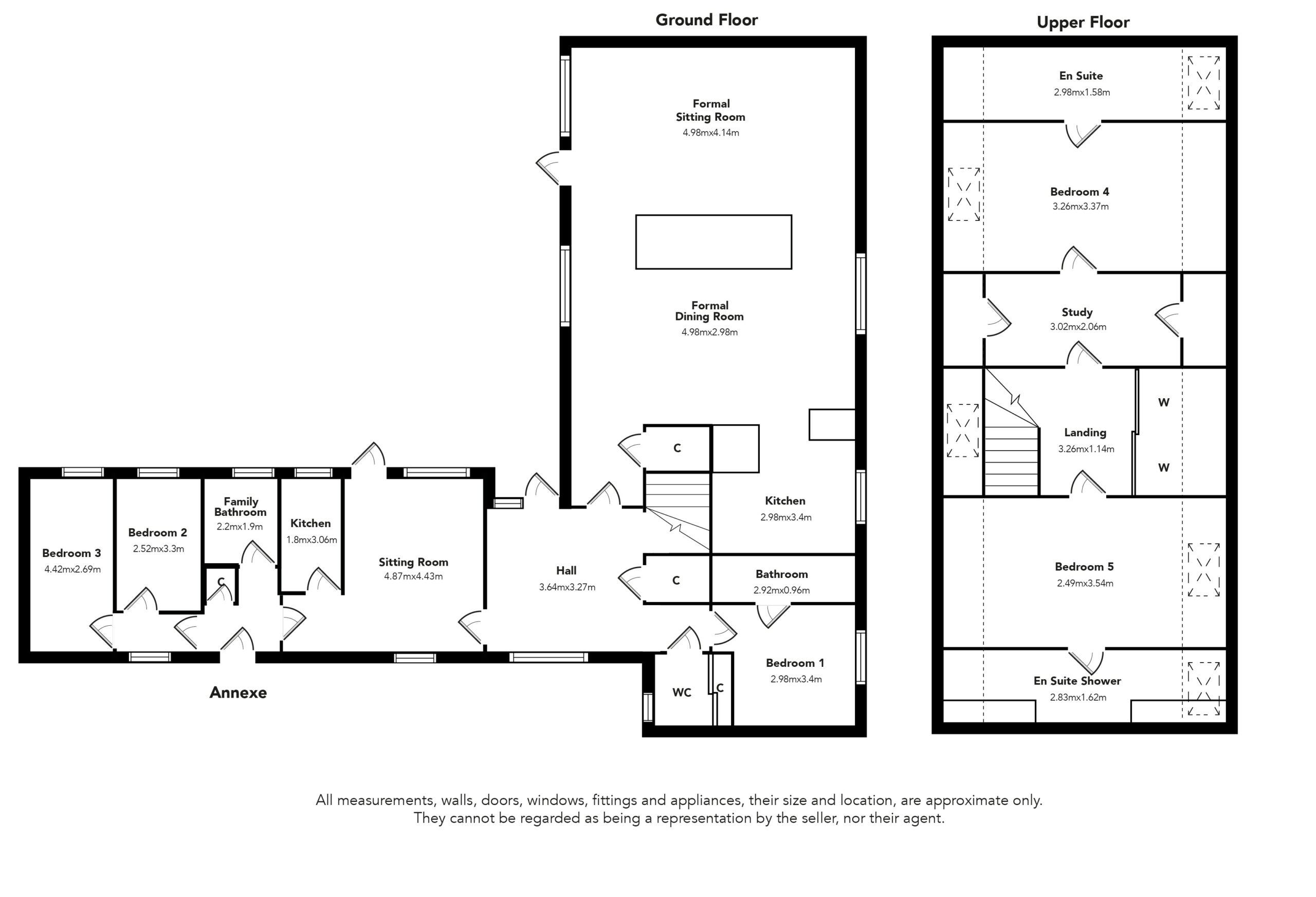
Ground Floor
Outer front door with glass insert to welcoming entrance hall, vaulted ceiling with 2 x velux windows, Italian slate flooring and windows to gardens. Open plan formal dining cum stylish kitchen with windows to gardens, fitted utilities cupboard, under stair stores/pantry stores, formal sitting room with picture frame window and glass insert door to gardens and decking and a warming log burning stove set in a feature inglenook fireplace. Utility/laundry cupboard housing the electrical switch gear, wc with linen stores and Mega flow tank, bedroom 1 with window to gardens, en suite shower room. From the entrance hall to ‘annexe’, formal sitting room with electric imitation stove (there is a chimney for open fire or stove), picture frame window and glass insert door to gardens, kitchen, hall with cupboard housing the electrical switch gear, bathroom with spa bath, bedroom 2 and 3 with windows to gardens, door to rear gardens. (Access via ladder to fully boarded loft from a hatch in bedroom 2. Megaflow hot water for the annexe is in the loft)
First Floor
Via carpeted staircase to first floor landing, ample fitted stores, home office/study/dressing room with 1 x velux window and access to property eaves, bedroom 4 with 1 x velux window, en suite bathroom with velux window to gardens, bedroom 5 (currently set up as a study/music room) with 1 x velux window, en suite shower room.
Outbuildings
Detached timber/concrete brick-built workshop/store presented under a tiled roof. General purpose timber garden shed, detached timber log store, poultry enclosure. 6 bay poly tunnel with a solar powered automatic watering system. A 4,500L naturally harvested rainwater tank supplies the outbuildings and the gardens with water.
Gardens
Via a shared gravel driveway with one other, leading to twin leaf steel gates to ample vehicular hard standing, parking and turning area. A timber garden shed is also located here. The immediate gardens are relatively low maintenance by design and laid to a combination of paving stone pathways, gravel and well-located patio areas, all of which are ideal for alfresco sitting, dining and entertaining family and friends. A generous area of lawn warps around the property with an assortment of specimen trees, beds and bushes at its fringes.
Beyond the immediate gardens at Tighnavinish there is an area of additional amenity garden ground of about over half a hectare which is leased from the Gigha Trust for nominal rent. It is understood that the lease has circa 7 years before renewal/expiry, (highlighted in blue within our landplan).
The ground is laid to a combination of level lawns with various raised vegetable beds, fruit trees and a poultry enclosure creating an excellent sustainable way of living. There are more than 300 trees and the current owners coppice some of them for fuel for the stove. An area of mature ground offers excellent scope for hobby farming or for a family pony or horse. All of which are bounded by a Rylock fence and an established tree line, from the graden there are wonderful 360 degree rolling countryside views and due South outstanding waterscape views.
Visit Gigha website for more information.
www.visitgigha.co.uk
Services
Tighnavinish is serviced by electric night store heating assisted by the warming log burning stove, drainage is by private septic tank, mains water supply, double glazing. In addition, there are 21 x solar panels on the roof.
Note: The services have not been checked by the selling agents.
Local Authorities
Argyll & Bute Council
Tel: 01546 602127.
Council Tax
Tighnavinish is in council tax band F and the amount payable for 2026/2027 is £3,334.06 to include mains water and excluding sewage
EPC
Rating C
Situation
Tighnavinish is situated on the charming west coast of Scotland’s Island of Gigha. Gigha is 2.8 miles west of the Kintyre peninsula with a regular ferry service. The property is situated on a site with a dramatic southerly exposure from which there are remarkable sunsets, sunrises from the east and spectacular views.
Gigha has a primary school, shop, hotel with bar, Michelin Star recommended restaurant and a church with regular services. There is an island Ambulance, Coastguard and a nursing presence 24 hours a day with a GP visiting every Wednesday.
On the mainland, the town of Campbeltown is 22.9 miles to the south has two major supermarkets, garages, a full range of shops and professional services, a secondary school, an A&E hospital with an emergency air-ambulance service to Glasgow, leisure facilities (including a modern swimming pool), library and a cinema. Tarbert is 22.9 miles north and has good local shops and services.
From Tarbert, there are ferry links to Islay and Portavadie, which gives access to an alternative route to Glasgow via Dunoon and Gourock for commuters. Gigha has its own grass airstrip which is near the south end of the island lying in an east/west direction. The airfield can be used by private planes and microlights.
For sporting/outdoor enthusiasts, the coastline offers wonderful opportunities to fish, surf, canoe, snorkel and walk. Kit can be hired on the island.
The west of Scotland is world famous for its scenic sailing waters, and around the Mull of Kintyre area leads to the protected waters around Loch Fyne and the Firth of Clyde as well as the scenic Kyles of Bute. North of Gigha leads to the northwest coast and the Hebrides.
Productive sea fishing from shore and boat is available locally and there are trout and salmon opportunities by permit in surrounding islands, mainland rivers and hill lochs.
Gigha
Gigha is the most southerly and one of the most beautiful of the Hebridean Islands. Seven miles long by a mile and a half wide, Gigha is situated three miles west of the Kintyre peninsular, approximately three hours’ drive from the City of Glasgow, with a 20 minute roll on and off ferry every hour. Gigha is easily described as breathtaking - sandy beaches, clear blue green seas and a host of wildlife. The climate is pleasantly mild as a result of the Gulfstream.
The History of Gigha
Step ashore on the Isle of Gigha and you are following in the tracks of the Scots who settled on Kintyre and the Hebrides from Ireland. Of the Vikings who plundered those settlements from distant Scandinavia and of the Norse King Hakon, who also gave the isle its name, Gudey, the Good Isle. The Gaels adjusted the name to Gigha (Pronounced Geea) as time passed.
Throughout history, the isle has been noted for its fertile soil; from 1700 until 1850 it was completely without trees, until the owner planted the woods around Achamore House. Its value in terms of agriculture is reflected throughout its history - good land provided men and women who could carry arms and take part in the island’s battles, with the means to survive and prosper. About the time of the fall of the Lord of the Isles, in 1493, Gigha came into the possession of the family of MacNeill of Taynish. The family fought many bitter disputes with the Macdonald Clan to hold onto the island until finally selling it in 1790 to another branch of the Clan Neill, the MacNeills of Colonsay. Thereafter the island has had many owners, the Scarletts, Allens, Hamers - until in 1944 it was sold to Sir James Horlick, when the story of the creation of the great gardens of Achamore began.
The Isle of Gigha Heritage Trust now own the Isle of Gigha, including Achamore Gardens.
The small island of Cara, to the south had remained the property of the MacDonalds of Largie, the last link with the Lord of the Isles. There are McNeills still in Gigha, amongst the 160 inhabitants
Travel Directions
whats3words ///fashion.mills.culminate
From Glasgow take the A82 and A83 to reach the west coast town/port of Tarbert. Take the A83 out of Tarbert following signs for Campbeltown. After about 18.5 miles arrive at the ferry port Tayinloan. The roll on roll off ferry is a short crossing to Gigha. Once on the island continue for circa 0.5 miles to find reach the ‘T’ junction with the post office on your right-hand side, turn right and follow the road before taking the second right hand exit, proceed along the gravel drive to find Tighnavinish on your left-hand side.
Please complete the form below and a member of staff will be in touch shortly.